ARKHAM - La Rochelle (17)

Retour aux références

Crédits SARL ARKHAM

OPÉRATION
ARKHAM - Bar à Cocktails
LOCALISATION
La Rochelle (17)
MOA
SARL Arkham
ARCHITECTES
Quentin Pinaud / Eva Blaineau
BET(S)

BUDGET GLOBAL
120 k€
SURFACE
95 m2
CERTIFICATION

DÉBUT DES ÉTUDES
2025
LIVRAISON
2025
MISSION DU PROJET
Mission de Maitrise d'Oeuvre Conception Protection du voisinage, confort sonore intérieur
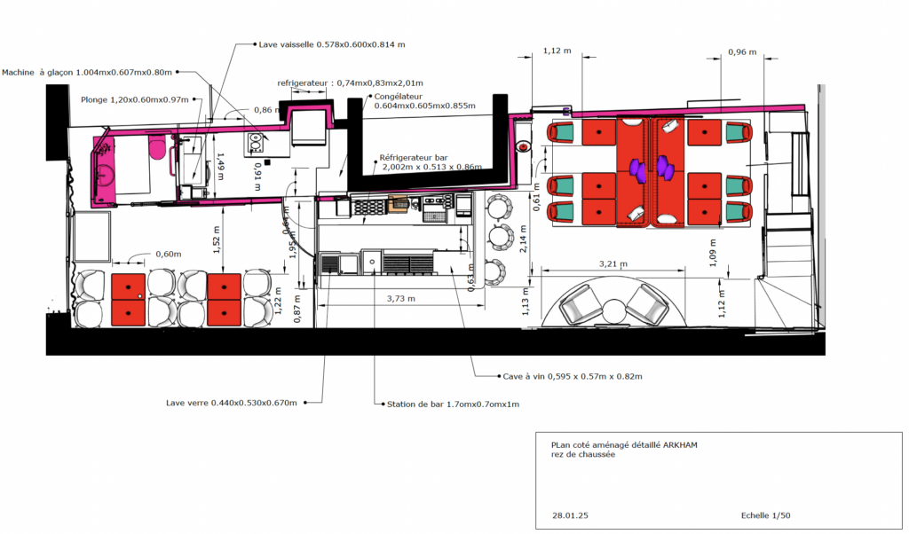
DESCRIPTION DU PROJET
Aménagement d'un bar à cocktail

Particuliers & entreprises, RESONANCE ACOUSTIQUE est votre expert acousticien sur Paris et l'Île de France. 
Contactez-nous dès aujourd'hui pour nous parler de votre projet.
Nous contacter
Copyright 2021
 RÉSONANCE ACOUSTIQUE
Site créé avec passion par PIKO PIKO
arrow-circle-o-downcrossmenuchevron-left
linkedin facebook pinterest youtube rss twitter instagram facebook-blank rss-blank linkedin-blank pinterest youtube twitter instagram